Projektová dokumentace je dnes nedílnou součástí každé stavby, která je vyžadována zákonem, proto je důležitá její správnost a kompletnost.
Naše firma Vám ráda pomůže a bude při ruce po celou dobu průběhu stavebního řízení od architektonické studie až po finální dokončení stavby.
Pro povolení stavby, dodatečné povolení stavby, provedení stavby, pasport stavby
Studie proveditelnosti, doporučení dodavatelů pro stavbu a mnohé další
Nevíte co a jak? Architektonická studie Vám poslouží pro lepší představu o budoucím stavebním záměru
Nechce se Vám pořád obíhat úřady se spoustou dokumentů? Nechte to na nás
Jsme mladý tým projektantů, který se snaží posunout české stavebnictví na další úroveň. Naší vizí je přinášet kvalitu a radost našim zákazníkům. Poctivost a smysl pro detail je pro nás na prvním místě. Ke každému projektu přistupujeme subjektivně a snažíme se najít nejlepší řešení pro naše klienty.
Máme navázené spolupráce se všemi specialisty ostatních přidružených profesí ve stavební projekci i realizace.
Stavebnictví mě lákalo už jako malé dítě, když jsem stavěl z kostiček mrakodrapy. Teď mám možnost se na jejich výstavbě skutečně podílet.
Brno-Jih
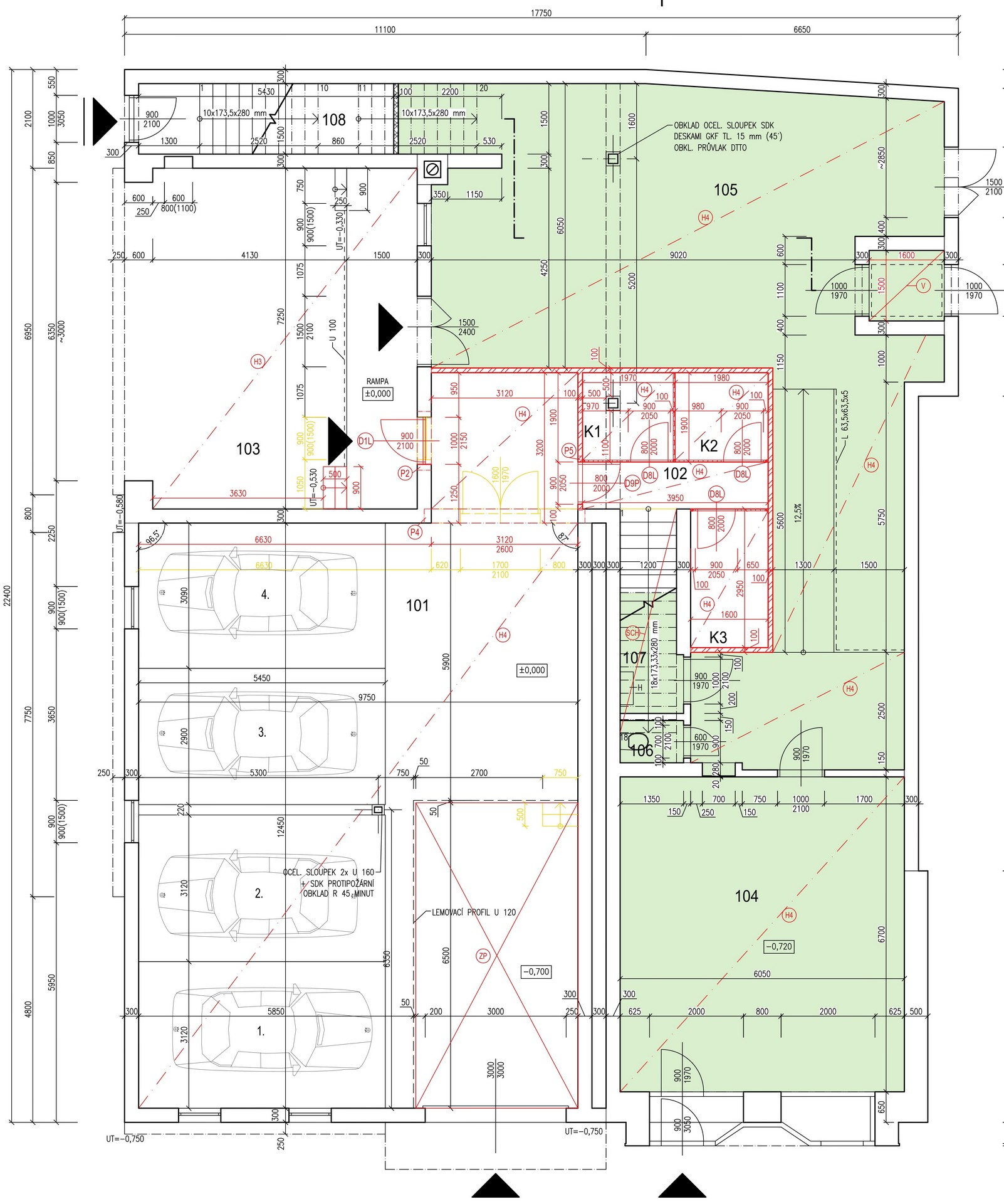
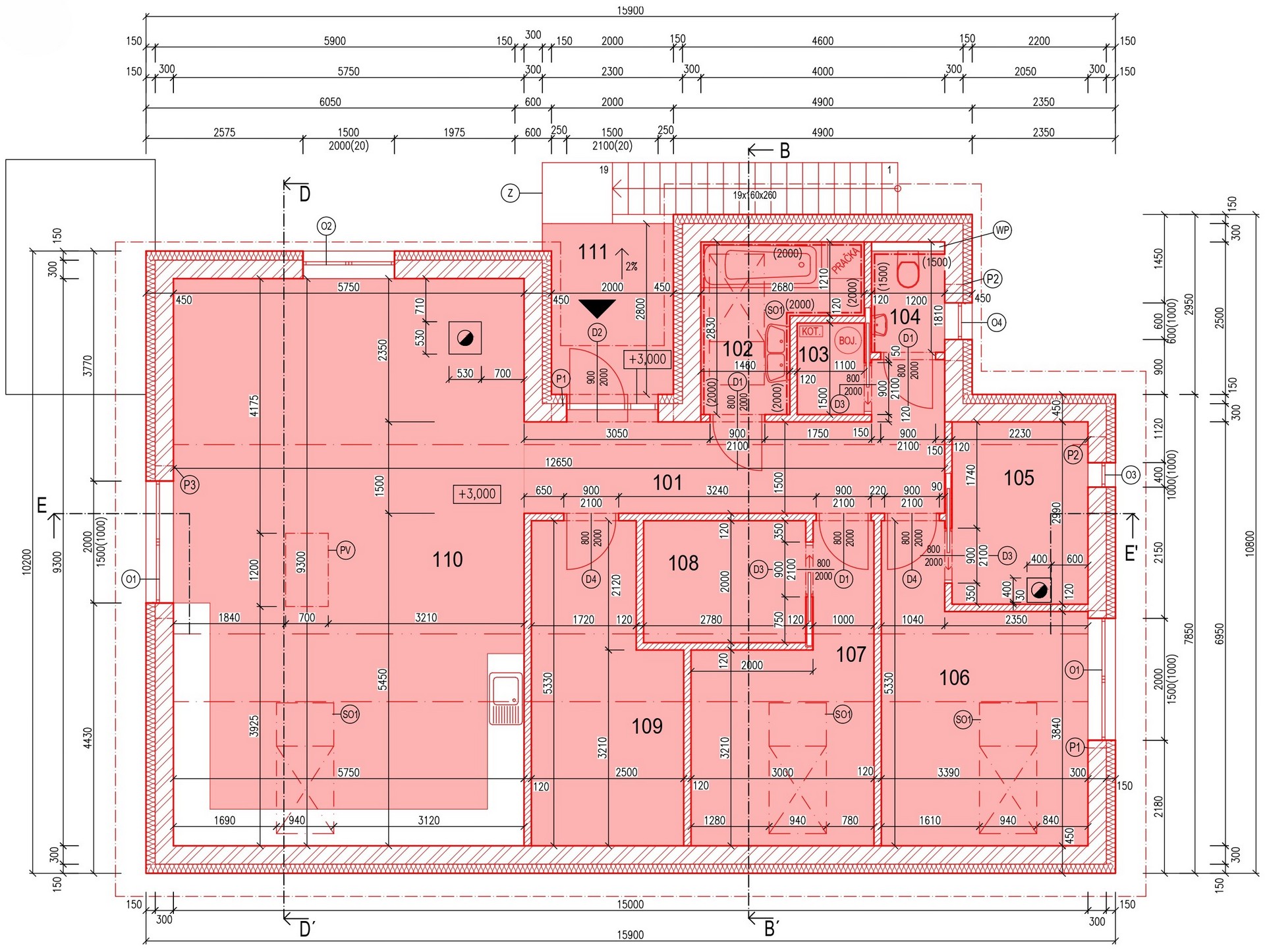
Přebudování a změna využívání stavby na bytové jednotky, garážové stání se sklepními kójemi a komerčními prostrory
Přebudování a změna využívání stavby na bytové jednotky, garážové stání se sklepními kójemi a komerčními prostrory
Přebudování a změna využívání stavby na bytové jednotky, garážové stání se sklepními kójemi a komerčními prostrory
Přebudování a změna využívání stavby na bytové jednotky, garážové stání se sklepními kójemi a komerčními prostrory
Přebudování a změna využívání stavby na bytové jednotky, garážové stání se sklepními kójemi a komerčními prostrory
Černá Hora
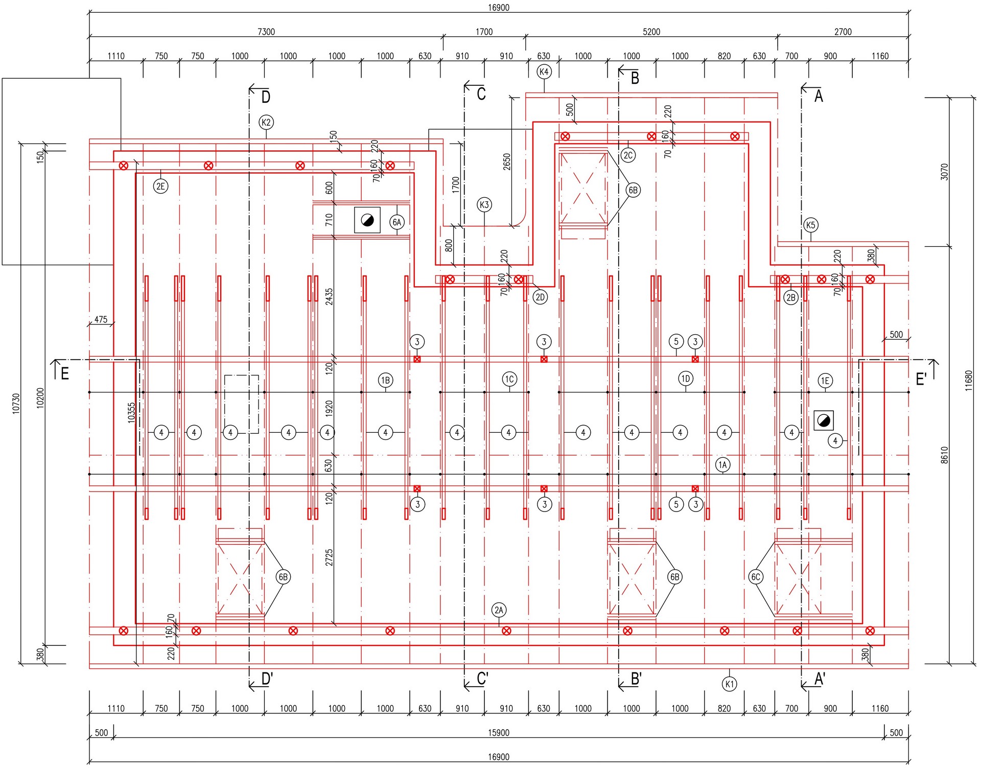
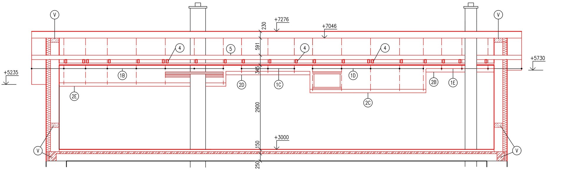
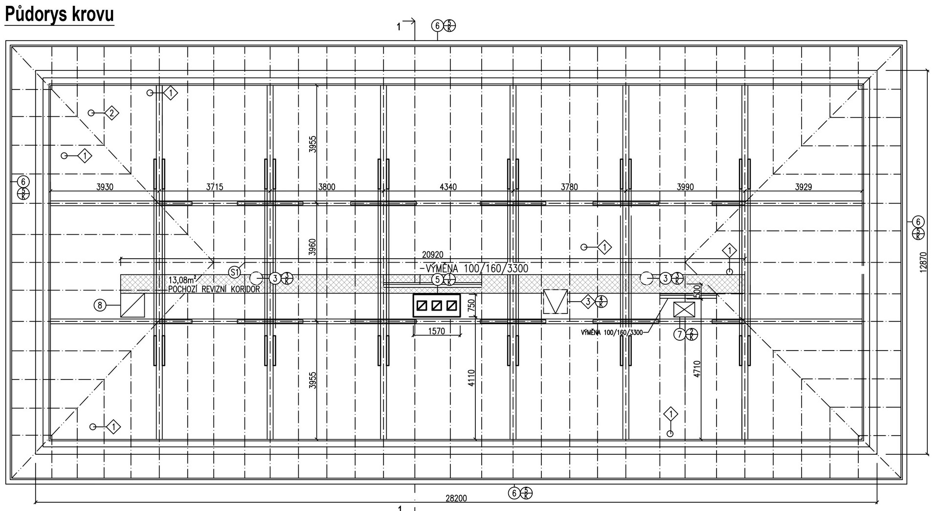
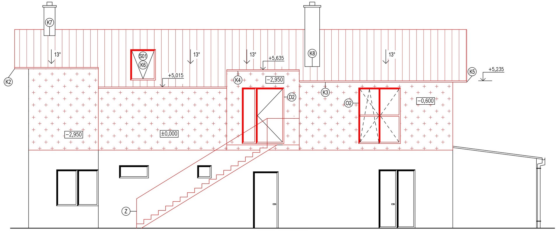
Vybudování nového obytného podkroví a nové střechy rodinného domu
Vybudování nového obytného podkroví a nové střechy rodinného domu
Vybudování nového obytného podkroví a nové střechy rodinného domu
Vybudování nového obytného podkroví a nové střechy rodinného domu
Vybudování nového obytného podkroví a nové střechy rodinného domu
Vybudování nového obytného podkroví a nové střechy rodinného domu
Hrochov
Hrochov
Odesláním formuláře berete na vědomí zpracování osobních údajů za účelem vyřízení vašeho dotazu v souladu se zásadami ochrany osobních údajů.
Adresa:
bratří Sapáků 2597/1, Brno-Líšeň 628 00
IČO:
22499113